a) Le particelle 101 e 102, contigue ed esistenti negli atti censuari, devono essere fuse in un'unica nuova particella (501), la cui superficie e' misurata e si discosta di 2 are rispetto alla superficie censuaria delle 2 particelle originarie (101 e 102).
b) La particella derivante dalla fusione (501) deve essere frazionata in 3 nuove particelle (502, 503, 504); la particella 103, contigua alla 102 ed esistente negli atti censuari, deve essere frazionata in 2 nuove particelle (505 e 506); le particelle 502 e 506 vengono fuse per creare una nuova particella (507); la particella 505 deve essere inglobata nella particella 503.
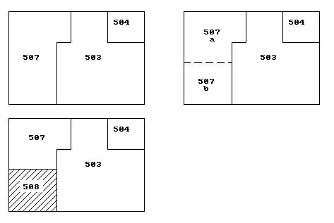
c) Sulla particella 507 si deve inserire un fabbricato urbano di 50 are .

Modalita' di compilazione
Gli schemi devono essere compilati secondo la sequenza sotto indicata (per l'ordinamento degli schemi, cfr. parag. I):
A) Schema Ausiliario
Comune : XXXXX
Foglio : YYYY

Lo schema riporta le operazioni descritte nel punto a) sopra menzionato.
Gli atti censuari, dopo l'approvazione e la loro registrazione automatica, conterranno le seguenti informazioni:
- la particella 101 viene soppressa con l'annotazione di stadio "UNITA ALLE PARTICELLE: 501" e di "MIGLIORE PRECISAZIONE DI SUPERFICIE" (quest'ultima annotazione viene apposta in quanto c'e' sbilancio di superficie (2 are));
- la particella 102 viene soppressa con l'annotazione di stadio "UNITA ALLE PARTICELLE: 501" e di "MIGLIORE PRECISAZIONE DI SUPERFICIE" (quest'ultima annotazione viene apposta in quanto c'e' sbilancio di superficie (2 are));
- viene costituita la particella 501 avente la qualita' di seminativo di prima classe, partita di carico uguale alla partita di carico delle
particelle 101 e 102 (queste ultime devono avere la medesima partita di carico), superficie di 1 ettaro e 18 are, e le annotazioni "SR" e "COMPRENDE LE PARTICELLE: 101 , 102".

B) Schema di Frazionamento
Comune : XXXXX
Foglio : YYYY

Lo schema riporta le operazioni descritte nel punto b) sopra menzionato.
Gli atti censuari, dopo l'approvazione e la loro registrazione automatica, conterranno le seguenti informazioni:
- la particella 501 viene soppressa;
- la particella 502:
- viene costituita (allo stadio 1, come per tutte le costituite), con la superficie di 60 are, l'annotazione SR, la qualita' e la classe della 501, e viene allibrata alla partita in cui era in carico precedentemente la particella 501 (la costituzione della particella 502 e' derivata dal frazionamento della particella 501);
- viene soppressa, allo stadio 2, in virtu' della formazione del lotto relativo alla particella 507, con l'annotazione di stadio "UNITA AL FG. YYYY N. 507";
- la particella 503:
- viene costituita (allo stadio 1, come per tutte le costituite), con la superficie di 40 are, l'annotazione SR, la qualita' e la classe della 501, e viene allibrata alla partita in cui era in carico precedentemente la particella 501 (la costituzione della particella 503 e' derivata dal frazionamento della particella 501);
- viene variata (allo stadio 2) in quanto congloba l'intera particella 505, con superficie finale di 60 are (40 + 20) e l'annotazione di stadio "COMPRENDE IL FG. YYYY N. 505"; gli altri dati rimangono immutati rispetto allo stadio 1;
- la particella 504 viene costituita (allo stadio 1, come per tutte le costituite), con la superficie di 18 are, l'annotazione SR, la qualita' e la classe della 501, e viene allibrata alla partita in cui era in carico precedentemente la particella 501 (la costituzione della particella 503 e' derivata dal frazionamento della particella 501);;
- la particella 103 viene soppressa;
- la particella 505:
- viene costituita (allo stadio 1, come per tutte le costituite), con la superficie di 20 are, la qualita' e la classe della 103, e viene allibrata alla partita in cui era in carico precedentemente la particella 103 (la costituzione della particella 505 e' derivata dal frazionamento della particella 103);
- viene soppressa, allo stadio 2, in virtu' della sua fusione con la particella 503, con l'annotazione di stadio "UNITA AL FG. YYYY N. 503";
- la particella 506:
- viene costituita (allo stadio 1, come per tutte le costituite), con la superficie di 15 are, la qualita' e la classe della 103, e viene allibrata alla partita in cui era in carico precedentemente la particella 103 (la costituzione della particella 506 e' derivata dal frazionamento della particella 103);
- viene soppressa, allo stadio 2, in virtu' della sua fusione con la particella 507, con l'annotazione di stadio "UNITA AL FG. YYYY N. 507";
- la particella 507:
- viene costituita (allo stadio 1, come per tutte le costituite), con la superficie di 75 are (60 + 15), la qualita' e la classe della 502 e 506 (che devono avere entrambe la stessa qualita' e classe), la partita uguale alle partite di carico della 502 e 506 (che devono entrambe essere allibrate alla stessa partita), l'annotazione di stadio "COMPRENDE IL FG. YYYY N. 502 , 506".

C) Schema di Tipo Mappale
Comune : XXXXX
Foglio : YYYY

Lo schema riporta le operazioni descritte nel punto c) sopra menzionato.
Gli atti censuari, dopo l'approvazione e la loro registrazione automatica, conterranno le seguenti informazioni:
- la particella 507 viene variata (allo stadio 2), con superficie risultante uguale a 25 are; gli altri dati rimangono immutati rispetto allo stadio 1;
- la particella 508 viene costituita con superficie di 50 are e destinazione di ENTE URBANO (Qual. = 282); la superficie della particella 508 viene prelevata dalla particella 507.